仙游大地京闽酒店
仙游大地京闽酒店位于于中国古典工艺家具之都、工艺美术和戏剧之乡莆田仙游。是由大地集团投资,厦门京闽酒店管理公司管理的仙游首家五星级挂牌豪华酒店。酒店交通便利,占地2.7万平方米,拥有各式豪华客房、套房、别墅275间。无论是富含秦汉宫廷风格的主体建筑,充满文化韵味的中西餐厅,亦或是风姿卓越的SPA会所、设施齐全的各式多功能厅,每一处都散发着优雅独特的人文魅力。十五游神仙,仙游未曾歇。仙游大地京闽酒店秉承“真诚利他,创造感动”之服务理念, 致力于为每一位宾客创造难忘的旅居体验。
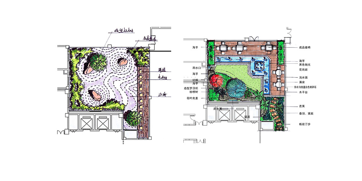
酒店建筑风格为东南亚风格,建筑风格符合休闲娱乐酒店的项目定位,在本区域具有景观特殊性。景观设计理念是让人享受阳光、风、水、植物的四季之美,为人提供平等、共享的绿色室外交流空间,为人与人交往提供舞台,与建筑和谐一体,一脉相承。
- 项目名称: 仙游大地京闽酒店
- 地理位置: 福建省仙游县
- 服务内容: 景观设计
- 项目类型: 商务酒店
- 建筑面积: 约15,000平方米
- 设计面积: 约15,000平方米
- 设计时间: 2011年
- 合作机构: -








